Residential
New Construction
Room Additions
ADU’s
Kitchen Remodeling
Bathroom Remodeling
Fire Rebuild
Commercial
Commercial New Construction
Commercial Remodeling
Tenant Improvements
Gallery
About
Reviews
Contact
Select Page
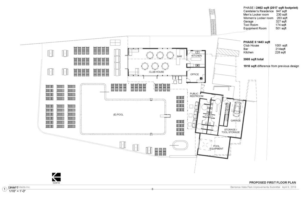
Ondulando Club Rebuild
Thomas Fire Rebuild
Architectural Drawings
CONTACT US TODAY
805-794-4969
Follow
Follow
Follow